image photo
合わせてよく見られる物件RELATION
プラセシオン分譲住宅一覧へ-
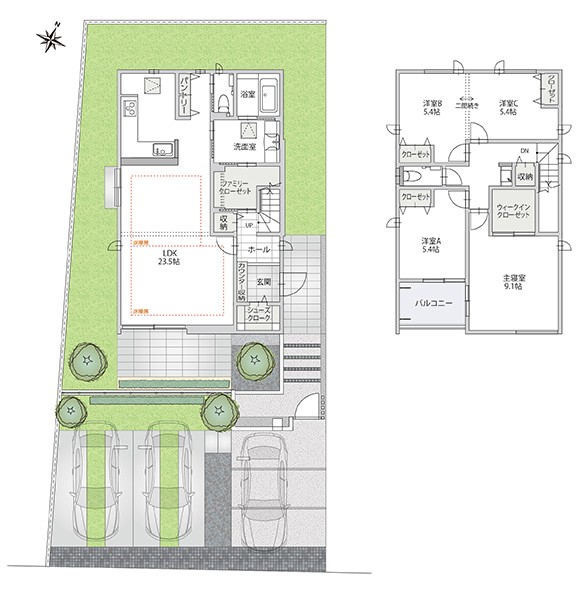
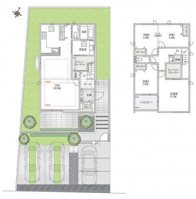
プラセシオンガーデン昭和伊勝
【2026年1月31日(土)~販売開始】
自然の潤いと利便性が調和する全3邸
書斎コーナーやロフトを設け、日々の
暮らしに小さな「ゆとり」を添える住まい。
伊勝小学校・川名中学校区 -
プラセシオンガーデン八事表山Ⅲ
【販売開始】
文教地区八事 利便性と環境の良さを兼ね備えた希少な立地
敷地面積63坪~70坪超
開放感のある吹き抜け空間
並列3台駐車
表山小学校・御幸山中学校 -
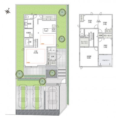
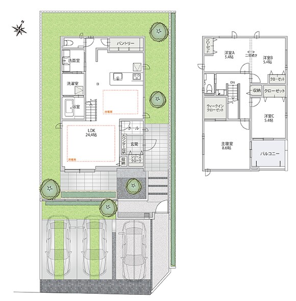
プラセシオンガーデン名東西山ヒルズ
【インテリア家具レイアウト内覧会開催中】
名古屋市東部から長久手まで見渡せる高台のロケーション。目前の公園のゆたかな緑と調和する全4邸。リビングにスタディコーナーを設け、勉強や趣味など「プラスの価値」をプランニング。
西山小学校・神丘中学校区。



0120-063-466
0120-063-466

印刷する